Брестская 2-я ул, д 6, Москва
Маяковская (3 мин. пеш.)
Путь
- Общее
- Коммерческие условия
| Округ | Центральный |
| Класс | A |
| Тип здания | Офисная недвижимость |
| Общая площадь | 32000 м2 |
| Этажность | 13 |
| Кондиционирование | Центральное |
| Система пожаротушения | Спринклерная |
| Вентиляция | Приточно-вытяжная |
| Провайдер | коммерческий |
| Видеонаблюдение и Охрана | есть |
| Операционные платежи |
Продажа торговых помещений
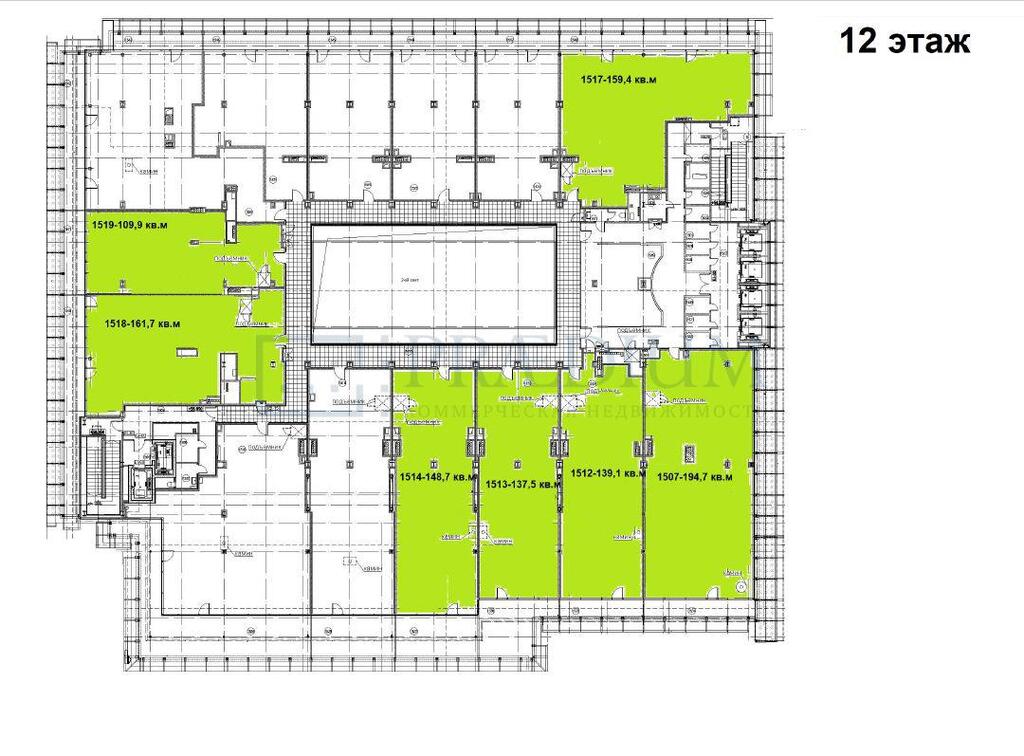
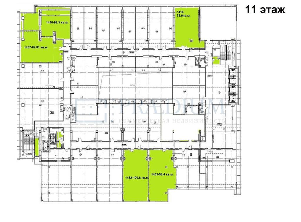
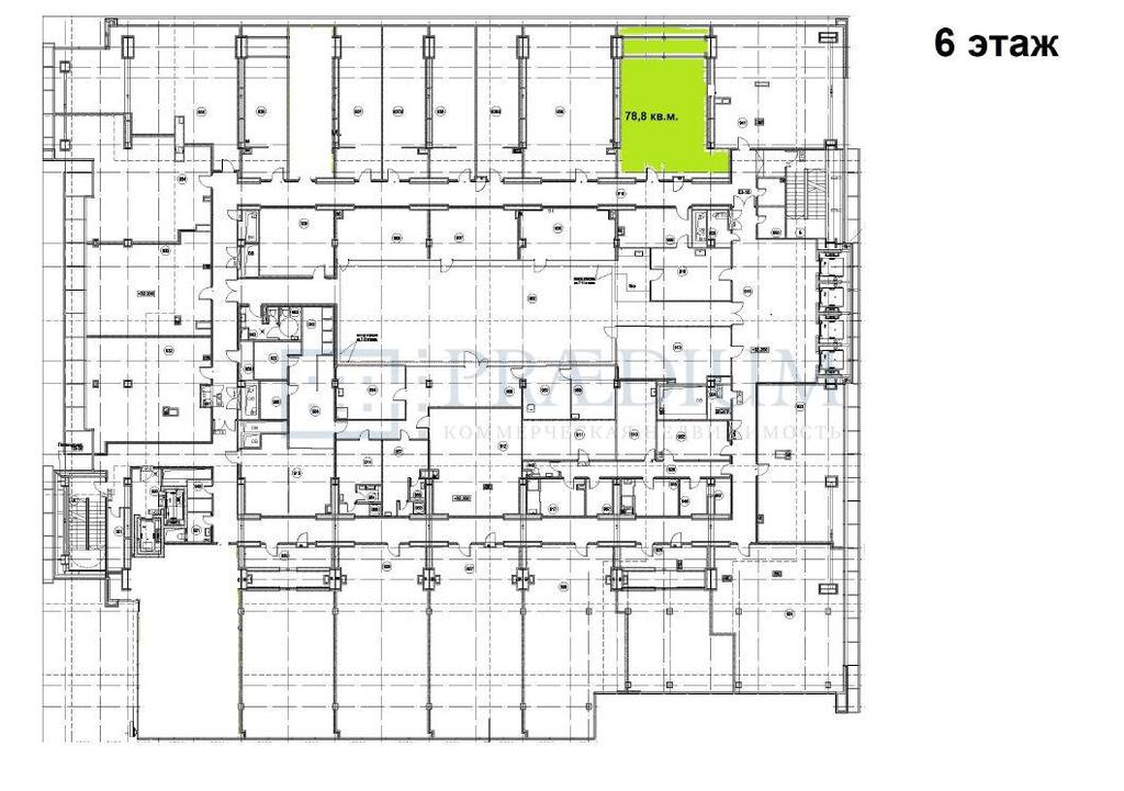
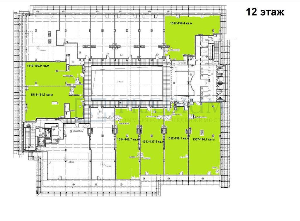
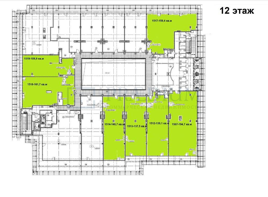
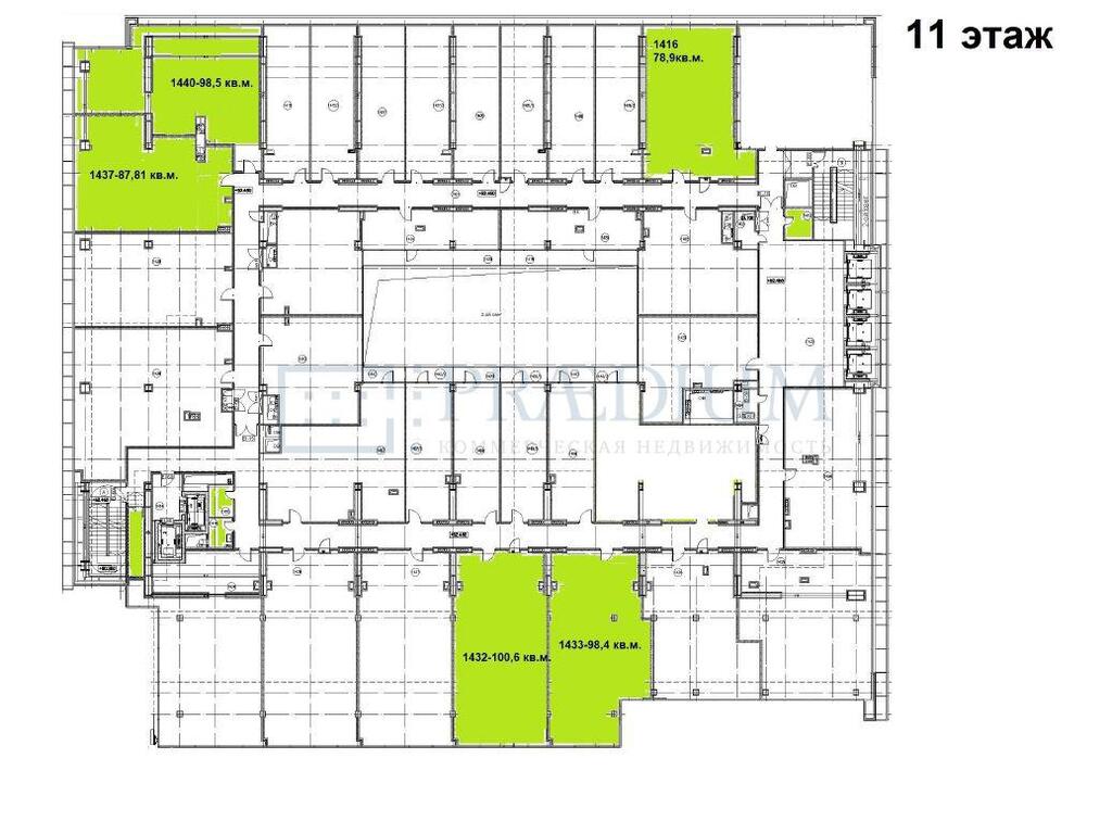
Этаж
Метраж
Стоимостьв месяц
Цена за м2
Назначение
Фотоблока
1
650.00
450 000 000 р.
692 308 р.
-
Характеристики
| Состояние | С отделкой |
6
78.80
52 000 000 р.
659 898 р.
-
Характеристики
| Состояние | Без отделки |
| Высота потолков, м | 4.5 |
11
100.60
90 000 000 р.
894 632 р.
-
Характеристики
| Состояние | Без отделки |
| Высота потолков, м | 4.5 |
11
98.40
89 000 000 р.
904 472 р.
-
Характеристики
| Состояние | Без отделки |
| Высота потолков, м | 4.5 |
Описание
Описание: ЖК «Резиденция Тверская» — элитный жилой комплекс с гостиничным сервисом, дизайнерским ремонтом и мебелью, расположенный в престижном районе Тверской улицы в самом сердце Москвы. Шестой этаж комплекса расположен на уровне стандартного 10-го этажа — благодаря этой уникальной особенности здания из панорамных окон высотой три метра открывается прекрасный вид на центр столицы.
интересует помещение?
Заполните заявку или позвоните по телефону +7 (495) 228-23-23 и консультанты ответят на ваши вопросы и назначат просмотр
Согласен на обработку персональных данных
По дополнительным вопросам и организации просмотров, пожалуйста, обращайтесь к консультанту
по объекту: +7 (495) 288 23 23





