Бумажный проезд, д 19 стр 4, Москва
Путь
- Общее
- Парковка
Инфраструктура - Коммерческие условия
| Класс | A |
| Тип здания | Офисная недвижимость |
| Общая площадь | 40000 м2 |
| Этажность | 19 |
| Кондиционирование | Центральное |
| Система пожаротушения | Спринклерная |
| Вентиляция | Приточно-вытяжная |
| Провайдер | коммерческий |
| Видеонаблюдение и Охрана | есть |
| Подземная парковка | 87 м/м, 35 000 руб. с НДС |
| Операционные платежи | 6000р., операционные расходы оплачиваются дополнительно |
| Коммунальные платежи | оплачиваются дополнительно |
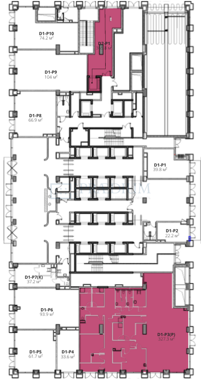
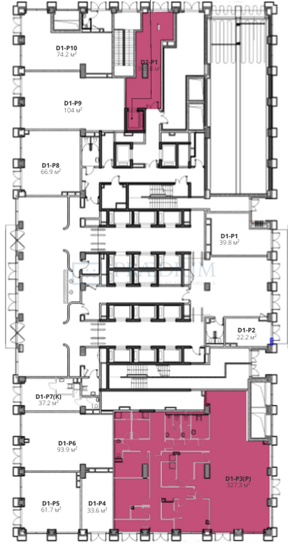
Аренда торговых помещений
Этаж
Метраж
Стоимостьв месяц
Цена зам2 в год
Назначение
Фотоблока
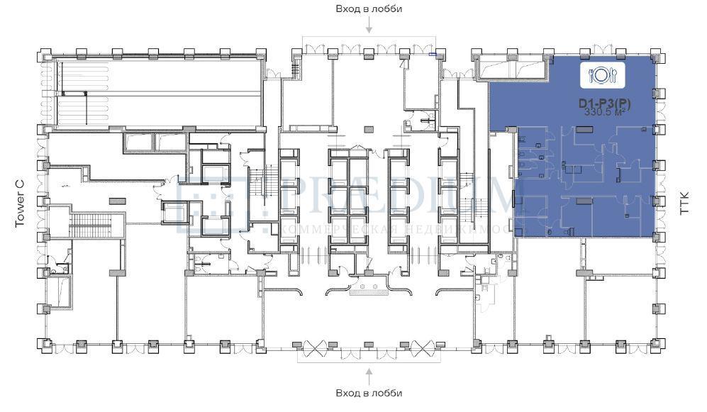
1
330.50
3 194 833 р.
116 000 р.
-
Характеристики
| Состояние | Без отделки |
| OPEX | Фиксированные |
| Коммунальные платежи | По факту |
| Назначение | общепит |
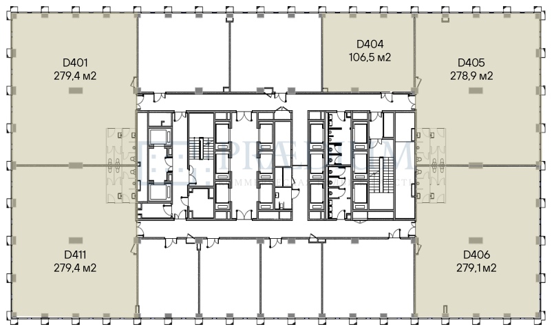
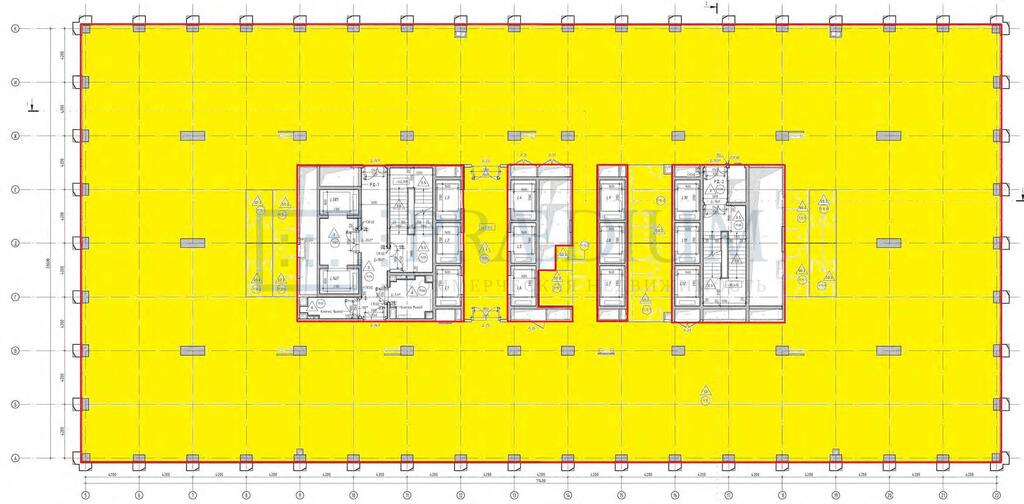
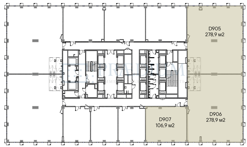
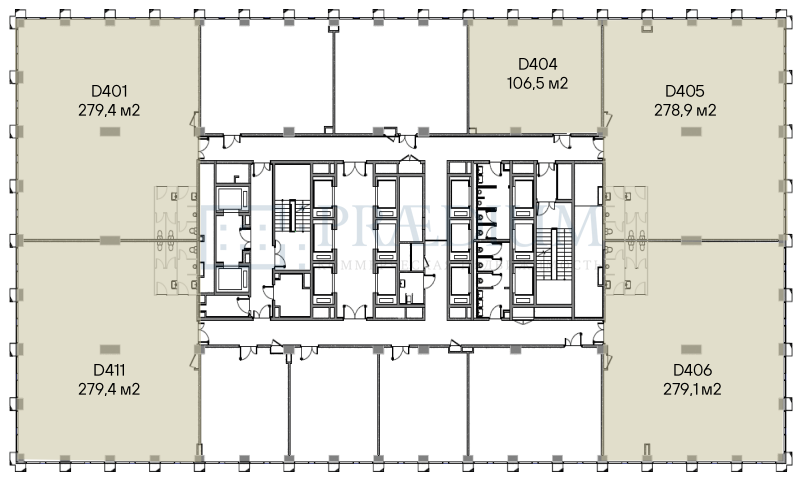
4
106.50
453 246 р.
51 070 р.
-
Характеристики
| Состояние | Без отделки |
| OPEX | Фиксированные |
| Коммунальные платежи | По факту |
4
279.40
1 303 867 р.
56 000 р.
-
Характеристики
| Состояние | Без отделки |
| OPEX | Фиксированные |
| Коммунальные платежи | По факту |
4
279.30
1 303 400 р.
56 000 р.
-
Характеристики
| Состояние | Без отделки |
| OPEX | Фиксированные |
| Коммунальные платежи | По факту |
Продажа торговых помещений
Этаж
Метраж
Стоимостьв месяц
Цена за м2
Назначение
Фотоблока
1
327.30
455 928 900 р.
1 393 000 р.
-
Характеристики
| Состояние | Без отделки |
| Назначение | магазин |
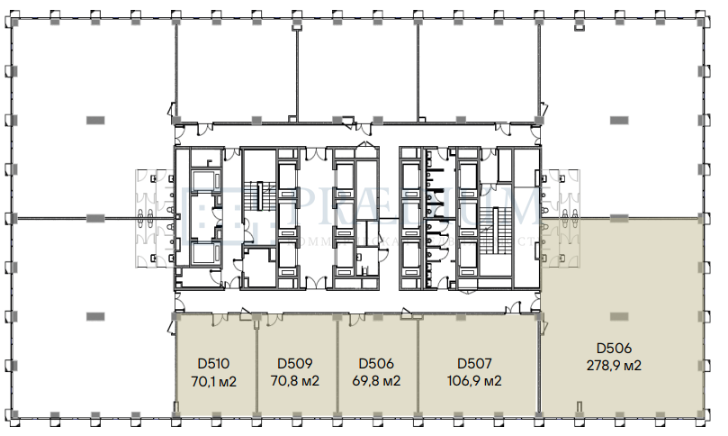
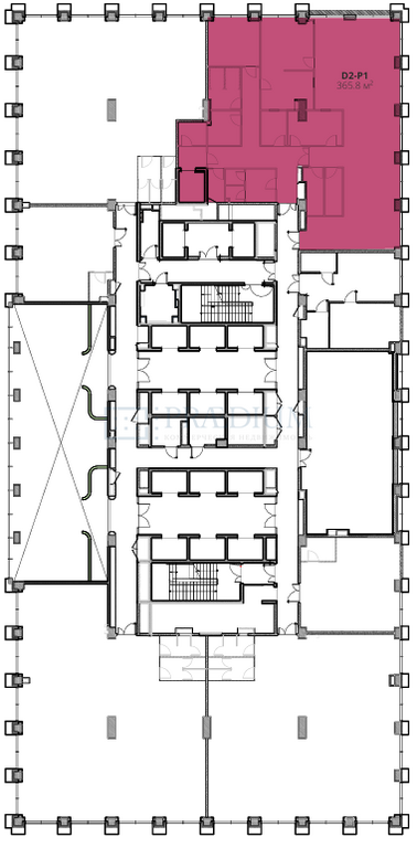
2
365.80
256 060 000 р.
700 000 р.
-
Характеристики
| Состояние | Без отделки |
| Назначение | магазин |
Описание
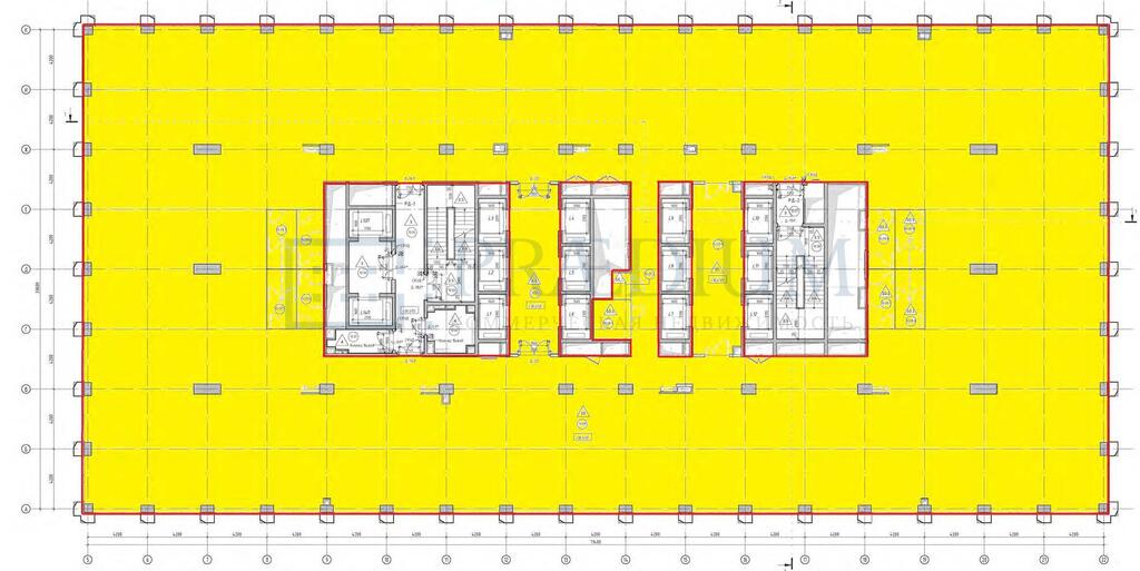
Описание: Бизнес-центр "Tower D" входит в премиальный офисный комплекс STONE Towers на территории 2,15 га.
Шаг колонн - 8,4*8,4
Высота потолков - 3,65 м.
Остекление в пол. Предусмотрена створка для естественного проветривания.
Наземный и подземный паркинг с зарядными устройствами для электромобилей.
интересует помещение?
Заполните заявку или позвоните по телефону +7 (495) 228-23-23 и консультанты ответят на ваши вопросы и назначат просмотр
Согласен на обработку персональных данных
По дополнительным вопросам и организации просмотров, пожалуйста, обращайтесь к консультанту
по объекту: +7 (495) 288 23 23



















