Последний пер, д 17, Москва
Сухаревская (5 мин. пеш.)
Трубная (5 мин. пеш.)
Цветной бульвар (5 мин. пеш.)
Путь
- Общее
- Коммерческие условия
| Класс | B |
| Тип здания | Офисная недвижимость |
| Общая площадь | 1590 м2 |
| Этажность | 5 |
| Вентиляция | Приточно-вытяжная |
| Провайдер | Совинтел |
| Операционные платежи | 12000р., операционные расходы оплачиваются дополнительно |
| Коммунальные платежи | оплачиваются дополнительно |
Аренда торговых помещений
Этаж
Метраж
Стоимостьв месяц
Цена зам2 в год
Назначение
Фотоблока
2
351.10
2 034 625 р.
69 540 р.
-
Характеристики
| Состояние | С отделкой |
| OPEX | Фиксированные |
| Коммунальные платежи | По факту |
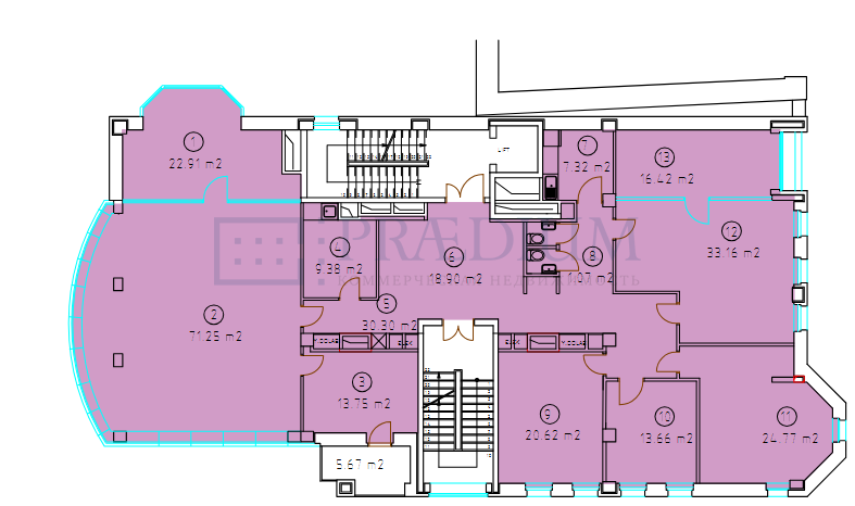
| Смешанная планировка |
Описание
Описание: Деловой комплекс расположен в исторической части города. Здание органично сочетает в себе элементы классической и современной архитектуры и соответствует всем требованиям, предъявляемым к бизнес центрам класса "В".
Здание оснащено современными инженерными системами, противопожарной сигнализацией, системой кондиционирования и приточно-вытяжной вентиляцией, подведено к центральной системе отопления.
- 1 500 кв.м. арендуемая площадь
- 351 кв.м. площадь типового этажа
интересует помещение?
Заполните заявку или позвоните по телефону +7 (495) 228-23-23 и консультанты ответят на ваши вопросы и назначат просмотр
Согласен на обработку персональных данных
По дополнительным вопросам и организации просмотров, пожалуйста, обращайтесь к консультанту
по объекту: +7 (495) 288 23 23













