Василия Петушкова ул, д 27, Москва

Василия Петушкова ул, д 27, Москва  - Офисная недвижимость
Василия Петушкова ул, д 27, Москва  - Офисная недвижимость
Василия Петушкова ул, д 27, Москва
Волоколамская (15 мин. тр.) Путь
  • Общее
  • Парковка
    Инфраструктура
  • Коммерческие условия
Округ Северо-западный
Класс B
Тип здания Офисная недвижимость
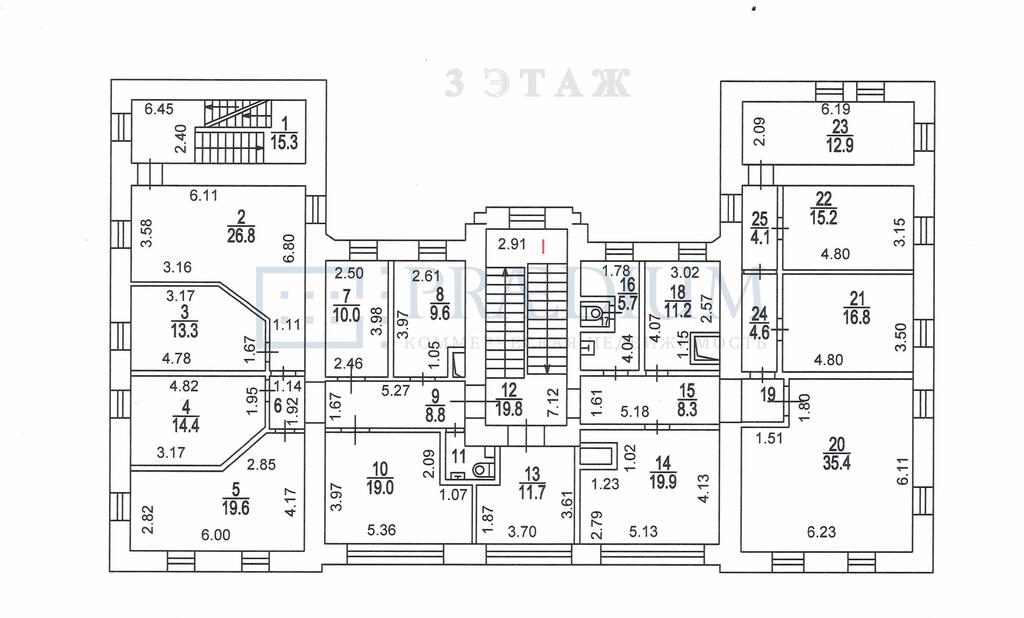
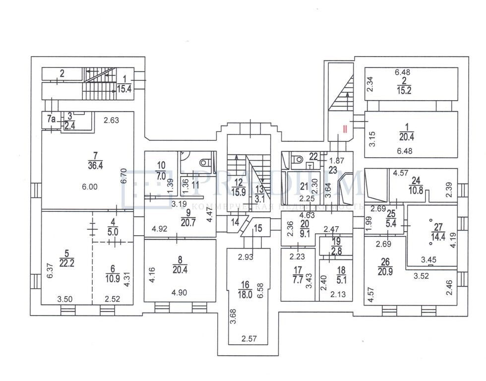
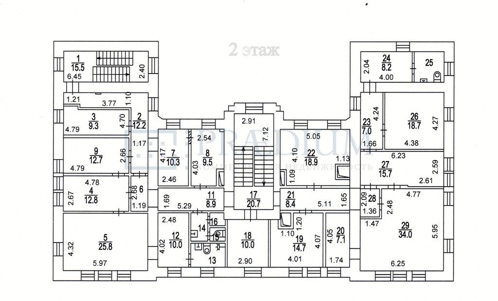
Общая площадь 1505 м2
Этажность 4
Кондиционирование Центральное
Провайдер коммерческий
Видеонаблюдение и Охрана есть
Наземная парковка 30 м/м, вкл. в аренд.ставку
Операционные платежи операционные расходы включены в арендную ставку
Коммунальные платежи оплачиваются дополнительно

Продажа торговых помещений

Этаж
Метраж
Стоимость
в месяц
Цена за м2
Назначение
Фото
блока
1
1505.00
225 000 000 р.
149 502 р.
-

Характеристики

Состояние С отделкой
Высота потолков, м 3.5

Описание

Описание: Бизнес-центр представляет собой презентабельный, 4-х этажный, исторический особняк, с цоколем и мансардой, построенный ещё до 1917-го года, расположенный на огороженной, охраняемой территории. Установлены все необходимые инженерные системы и коммуникации; есть охраняемая парковка. Рядом находится парковая зона. В соответствии с требованиями, предъявляемыми к инженерному обеспечению объектов офисного назначения, здание оснащено всем необходимым.Расположение: Расположен в СЗАО г. Москвы; ближайшая ст. м. "Волоколамская" - находится в 20 мин езды на общественном транспорте и 5-ти минутах - на автомобиле. Рядом пролегает Фабричный пр-д, Походный пр-т. Расстояние до МКАД составит - 1,03 км, до ТТК - 11,6 км.

интересует помещение?

Заполните заявку или позвоните по телефону +7 (495) 228-23-23 и консультанты ответят на ваши вопросы и назначат просмотр

Согласен на обработку персональных данных
По дополнительным вопросам и организации просмотров, пожалуйста, обращайтесь к консультанту по объекту: +7 (495) 288 23 23

Объекты рядом

Красногорск Плаза Красногорск Плаза

м.Волоколамская

от 40 м2

Гвоздь Гвоздь

м.Волоколамская