Шеногина ул, влд 2/11, Москва
Путь
- Общее
- Парковка
Инфраструктура - Коммерческие условия
| Класс | A |
| Тип здания | Офисная недвижимость |
| Общая площадь | 75105 м2 |
| Этажность | 24 |
| Кондиционирование | Центральное |
| Система пожаротушения | Спринклерная |
| Вентиляция | Приточно-вытяжная |
| Провайдер | коммерческий |
| Видеонаблюдение и Охрана | есть |
| Подземная парковка | 313 м/м, 40 000 руб. с НДС |
| Операционные платежи | 12500р., операционные расходы оплачиваются дополнительно |
| Коммунальные платежи | оплачиваются дополнительно |
Аренда торговых помещений
Этаж
Метраж
Стоимостьв месяц
Цена зам2 в год
Назначение
Фотоблока
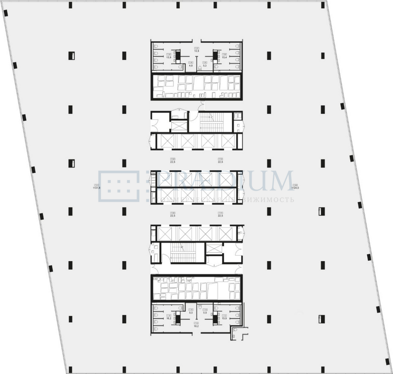
5
3735.60
16 498 900 р.
53 000 р.
-
Характеристики
| Состояние | Без отделки |
| OPEX | Фиксированные |
| Коммунальные платежи | По факту |
| Электричество | 100 |
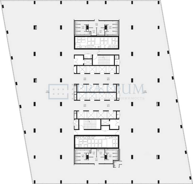
6
2445.30
12 898 958 р.
63 300 р.
-
Характеристики
| Состояние | Без отделки |
| OPEX | Фиксированные |
| Коммунальные платежи | По факту |
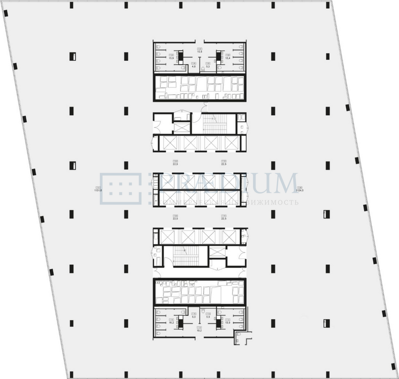
7
2451.70
13 014 441 р.
63 700 р.
-
Характеристики
| Состояние | Без отделки |
| OPEX | Фиксированные |
| Коммунальные платежи | По факту |
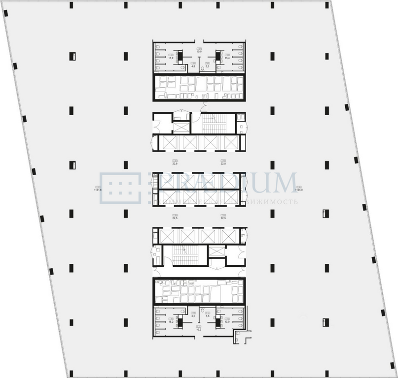
8
2450.50
13 089 754 р.
64 100 р.
-
Характеристики
| Состояние | Без отделки |
| OPEX | Фиксированные |
| Коммунальные платежи | По факту |
Описание
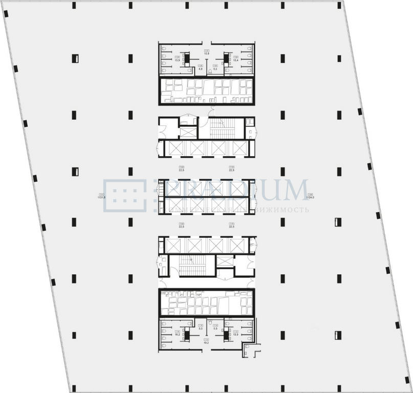
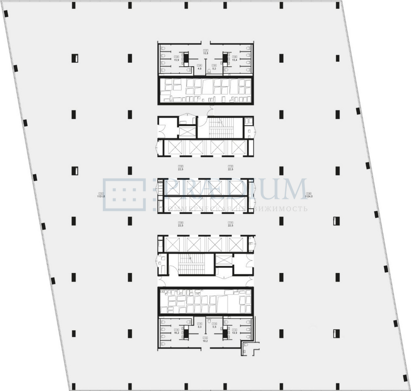
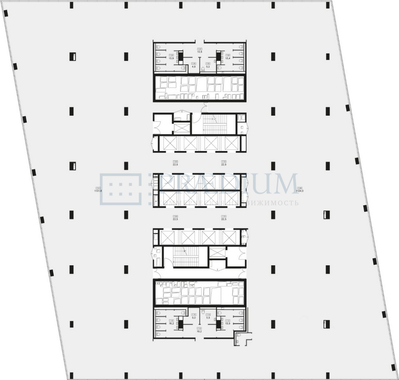
Описание: Общая площадь 75 105 м²
Наземная площадь 59 809 м²
Офисы 44 517,7 м²
Ритейл 516,1 м²
Ресторан 553,1 м²
Эксплуатируемые террасы 2 258 м²
Столовая 2 708 м²
Подземный паркинг на 313 м/м и 12 мотомест
Этажность: 24 + 4 подземных (в т.ч. 1 технический)
интересует помещение?
Заполните заявку или позвоните по телефону +7 (495) 228-23-23 и консультанты ответят на ваши вопросы и назначат просмотр
Согласен на обработку персональных данных
По дополнительным вопросам и организации просмотров, пожалуйста, обращайтесь к консультанту
по объекту: +7 (495) 288 23 23





