пл. Смоленская - Сенная, 23/25
Смоленская (Арбатско-Покровская линия)
Об объекте
За более подробной информацией об объекте недвижимости обращайтесь к консультантам компании по телефону +7 (495) 777 15 15
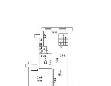
| Общая площадь | 146,9 кв.м. |
| Этажность | 1 |
| Высота потолков, м | 5 м. |
| Электричество | 20 кВт (увеличение до 45-50 кВт). |
| Дополнительная информация: | Отдельный вход со стороны фасада. Телекоммуникации: МГТС, Интернет. |
По дополнительным вопросам и организации просмотров, пожалуйста, обращайтесь к консультанту по объекту: +7 (495) 777 15 15


















